深圳招商地產蛇口高爾夫練習場設計
地址:深圳南山區蛇口鯨山九期別墅旁
打位:66個(自動上球系統)
包房:7個
球道:長220碼&6個球道目標果嶺
練習果嶺:200平米ASG推桿練習果嶺
設計建造:深圳一嶺高爾夫科技有限公司
配套:會所、餐飲、學院、專賣店、其他商業、商鋪、停車場
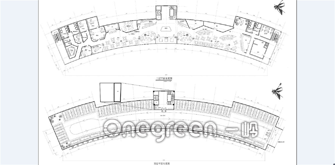
練習場坐落于風景秀麗的鯨山九期別墅旁,總占地面積31724平方米,建筑面積4233平方米。以高爾夫練習場為主題,建筑設計立足于綠色生態的環保理念應用自然而然設計手法,把整個建筑融入整體壞境。相得益彰地把鯨山九期別墅區和高爾夫練習場功能需求有機的結合起來,既保持各自區域私密性,又達到了互動效果。
練習場的主入口由高架橋引入到會所屋頂花園的停車場。人行經過高端展示區到電梯廳下到各功能區,行走路線距離最短。會所三樓是高爾夫用品銷售為主要功能分區,咖啡廳和換衣為輔的功能分區;中間的路線隔斷是為了讓兩個功能分區達到不相互干擾;二樓是主要高爾夫VIP包房區域,讓客人不被打攪并且有非常好的視野和環境;練習場一層是針對散客所設計的高爾夫球場;整個練習場空間區域從品味和客人人群照顧,甚至商業目的上,都達到一個和諧發展的設計目的。







在線客服
服務時間:9:00-18:00電話
139-0247-3919
0755-89495650
微信
關注微信公眾號
郵箱
service@onegreengolf.com